Laborräume und Arztpraxen

 

Laborräume

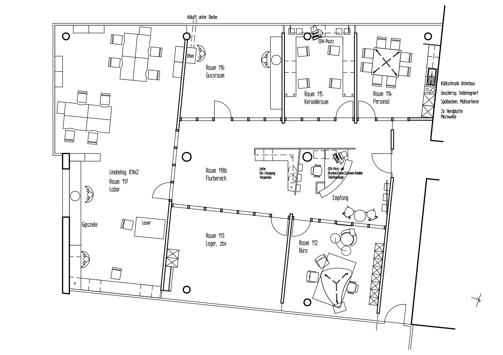
Die Herausforderung besteht darin individuelles Design mit optimierten Arbeitsabläufen zu kombinieren. Ich sehe mein Aufgabe darin diese Herausforderung zu erfüllen.

 

Praxisräume

... müssen nicht durch Praxiseinrichter realisiert werden.

Ich plane speziell auf Ihre Bedürfnisse angepasste Praxisräume in denen sich Patienten und Personal wohl fühlen. Die Realisierung erfolgt gerne in Zusammenarbeit mit Firmen aus der Region in bester Qualität.