Neubau
Umbau + Anbau
Wohnen + Leben
Laden + Gewerbe
Büro + Banken
Möbel + Design
Kunst + Kultur
Leistungen
Kontakt
Impressum
Datenschutz
> Vor
< Zurück
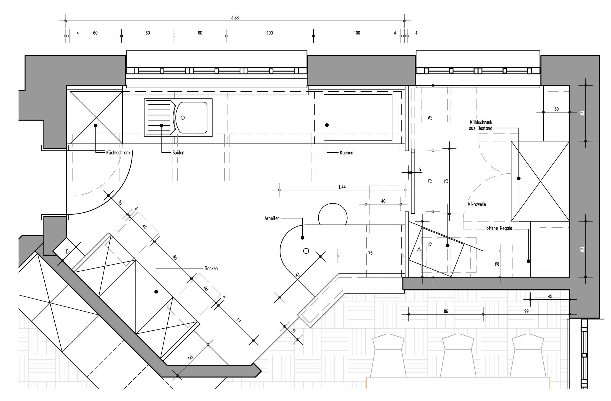
Küche
Ihre ganz eigene Küche.
Nur für sie entworfen und in hoher Qualität gefertigt.